HOME - PLANTS
TENSIK 60
High-capacity, pneumatically-activated batching solution with integrated weighing, conveying, and cement storage systems.

Overview

The TENSIK 60 is a compact and versatile concrete batching plant engineered for efficient material handling and reliable production. Featuring dual aggregate hoppers with full weighing capability, a pneumatically-activated discharge system, and integrated belt conveying, the TENSIK 60 delivers an all-inclusive package for small to medium concrete production needs. The plant includes a robust water metering system, digital weight indicators for precise batching control, and a complete cement storage and handling package with fluidization and vibration assistance.

Designed for ready-mix and small-scale precast operations, the TENSIK 60 combines mechanical durability with straightforward operation in a compact footprint.

Performance

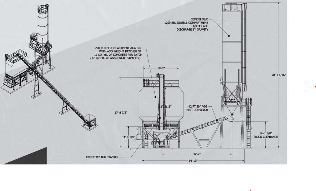
  • Hopper Capacity: 2 hoppers with full weight capacity of 6.5 yd³ each (8 yd³ total)
  • Load Cell Capacity: 8 load cells at 5,000 kg (10,000 lb) each
  • Cement Silo Capacity: 45 tons
  • Cement Hopper Capacity: 4,000 kg
  • Cement Load Cells: 4 load cells at 2,000 lb capacity with digital reader
  • Output depends on mix design, cycle time, moisture, material flow, and site conditions.

Key Features

  • Dual aggregate storage hoppers with integrated weighing system
  • Pneumatically-activated discharge cylinder with electro-valve control
  • Mechanical water metering with 3 HP water pump
  • Efficient belt conveyor system with electric motor and pendular speed reducer
  • Integrated cement storage with fluidizing kit and vibrator assistance
  • Digital weight indicators for precise aggregate and cement batching
  • Complete air system with compressor and pressure relief
  • Motor protection with STAR/STOP contactor switches

Details

Standard Configuration (What’s Included)

  • Aggregate System: 2 storage hoppers with full weight capacity (6.5 yd³ each)
  • Aggregate Weighing: 8 load cells (5,000 kg / 10,000 lb capacity each) with digital indicators
  • Discharge System: Pneumatic cylinder activated by electro-valve with MVE vibrator
  • Water System: 3 HP water pump with mechanical water meter
  • Conveyor System: 40 ft long CEMA B conveyor with 24″ belt, electric motor, and pendular speed reducer
  • Air System: 3 HP compressor with 100-liter tank capacity
  • Electrical & Controls: Contactors with STAR/STOP switches, motor protection, and relays for electro-valve control
  • Digital Indicators: 3 digital weight indicators for aggregates and cement
  • Cement Storage: 45-ton cement silo with fluidizing kit
  • Cement Weigh Hopper: 4,000 kg capacity with 4 load cells (2,000 lb each) and digital reader
  • Vibration System: MVE vibrator included
  • Safety: Pressure valve included

Conveyors & Material Handling

  • Belt Width: 24″
  • Conveyor Length: 40 ft
  • Conveyor Type: CEMA B
  • Drive: Electric motor with pendular speed reducer

Dust Collection / Air System

  • Compressor: 3 HP with 100-liter tank capacity
  • Pressure Relief: Pressure valve included
  • Aeration: Fluidizing kit for cement silo
  • Vibration: MVE vibrator for material flow assistance

Options & Upgrades

(Based on standard configuration — contact Tensik for available upgrades)

Best For

  • Small to medium ready-mix operations requiring compact footprint
  • Sites needing straightforward, mechanically reliable batching
  • Operations requiring integrated weighing and pneumatic discharge
  • Projects with moderate production targets and direct material feeding

Technical Drawings

FAQ's

What is the aggregate hopper capacity? The TENSIK 60 includes 2 hoppers with 6.5 yd³ capacity each (8 yd³ total system capacity).
What weighing system is included? 8 load cells at 5,000 kg (10,000 lb) each for aggregates, plus 4 load cells at 2,000 lb each for the cement hopper, with digital weight indicators.
What conveyor specifications does it have? 40 ft long CEMA B conveyor with a 24″ belt, driven by an electric motor with pendular speed reducer.
What water system is included? A 3 HP water pump with a mechanical water meter.
What cement storage is available? A 45-ton cement silo with fluidizing kit and 4,000 kg cement hopper.
What air system is included? 3 HP compressor with 100-liter tank, pneumatic cylinder with electro-valve, and pressure valve.
Is the system electrically protected? Yes — contactors with STAR/STOP switches and motor protection are included, along with relays for electro-valve control.

Gallery